史上最奇葩户型曝光,第一个就笑喷了。。

新浪育儿

事情的经过是这样的……
上海有一套二手房刷爆了朋友圈
连业内人士都震惊不已
“入行多年来,从未见过如此牛逼的户型”
▼

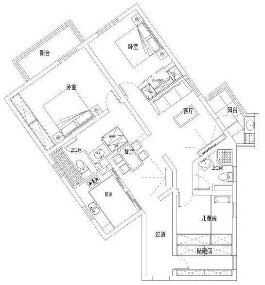
据说这套房前天已被买下
卖点是两室一厅一卫一厨一跑道
我们来看一下这张户型图
从主卧到次卧需要走过一条长长的过道
次卧像是被放逐了一样,充满了寂寞
串个门,都要经历下人生的蜿蜒曲折、跌宕起伏
▼

网友们表示,刷新了对户型的认知!




很难想象,入住之后
你躺在次卧床上,却没有wifi信号!

这款人气冠军“跑道户型”
虽然你看不起它,觉得它更像下水道
但价格你猜到了么……

不愧是上海的房价!

想起曾经见过一个酷似马桶的户型
面积虽小,五脏俱全
一室一厅一厨一卫一阳台
▼

看起来和刚才的“下水道户型”非常搭!
不信你看,把他们安装在一起
毫!无!违!和!感!
▼

有网友表示不服,并po出了一张图
“这才是我见过的最厉害户型”
▼

这TM是“升职器”户型?!
好奇地查了一下它的邻居都长啥样
结果……哎妈呀!我去!

大兄弟,你不是一个人在战斗!
让买房人颤抖去吧!

其实,
这些奇葩户型不仅真实存在,而且还不少呢!
快到年底了,很多人加快了买房的步伐
我也陪着朋友去看了看房子
一天下来,见识了各种神户型……

早早就出发的我们,还在路上讨论
“什么样的户型才是标准手枪户型”
是这种?
▼
“朋友,要不要喝一杯?”

“走开,别惹我!”

还是这种?
▼
“喂,你在干嘛呢?”

“嘘!我在上厕所”

直到我们看到了这款“AK47户型”
一切讨论就此终结
▼

这张户型图简直可以作AK47设计图纸好嘛!

再把它翻过来看,是一艘军舰!


军事爱好者你们慢慢看
我们先撤了……

接下来遇见的户型
就比较富有生活气息了
“鱼缸户型”

中间三个厕所挨在一起
全家这是要以卫生间为“中心”的节奏吗?
“水壶户型”

可怕的是,这个小区到处都是这种
第一眼看像水壶、仔细看又像电烫斗的户型……
“高跟鞋户型”

一房一厅一卫,自带小阳台
这是为单身白领打造的紧凑小户型吗?
(爸妈营微信号:bamaying)
“订书机户型”

待在家里
都有种在办公室加班的感觉……
“头盔户型”

送你一个头盔,我们去兜风
“手套户型”

设计师真贴心
冬天来了,他可能觉得我们需要这种户型
“厨具户型”

请叫我菜刀,谢谢!
“摩天轮户型”

其实这不算什么
给大家介绍一下它的双胞胎兄弟——
“日不落户型”

东南西北全通透
360°享受阳光的亲吻……

时间过得很快,不知不觉到了中午
下面这几个户型,竟然把我们看饿了!
“披萨户型”

你能想象自己住在一片披萨里吗?
“三明治户型”

“小猪户型”


吃过午饭,休息片刻
下午继续战斗在看房一线
“恶魔之嘴户型”

酷似一个张开嘴的恶魔
像极了我们中午吃饭狼吞虎咽的嘴脸……
“鳄鱼户型”


是的,你没有看错!
真实户型就是这个样子!
不得不感叹造物者的神奇!
大自然的鬼斧神工!
“鞠躬户型”

给您鞠个110平米的躬

看房处处有惊喜
就在我们觉得有点累的时候
这款“歪脖子户型”治好了我多年的颈椎病……
▼


“劈腿户型”

像是劈腿,又像是内裤
不管像什么,我只想问一句:

……
天黑了,我们回家了
今天真是收获满满的一天啊!
爸妈营后记:
其实一般人看看这个贴也就笑笑。
爸妈营看了这个贴就在想:
要是这户型就是学区房,当了爸妈的你,买吗?
公众号:少女兔 (mh4565)
相关链接:

